top of page

Eclipses + Will Pvt. Ltd.
Urban / Architecture / Interior Design
![]() | ![]() |
|---|---|
![]() | ![]() |
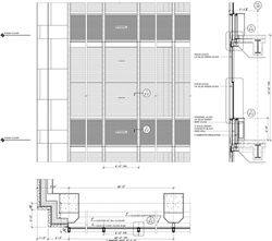
UN Secretariat
New York, NY
The execution of the United Nations CMP brought a series of mid-century Modern structures into compliance with today’s 21st century requirements. The design standards that we developed served as a framework for understanding the inherent opportunities in restoring the campus, whether within the context of the site, perimeter security, local codes, preservation, workplace, or operations.
Eclipses + Will was associated with HLW International LLP of NYC which
responsible for site surveys, analysis, schematic design, design development and construction document phases; contributed to the full renovation and modernization of 210,000 sq ft U.N. Secretariat building.
bottom of page



![CURTAINWALL-DETAILS Model-UN[1]](https://static.wixstatic.com/media/ed6ae5_4c6ff665dbf7497ca5b1c6c897a725ac~mv2_d_3455_3065_s_4_2.jpg/v1/fill/w_250,h_221,al_c,q_90,enc_auto/ed6ae5_4c6ff665dbf7497ca5b1c6c897a725ac~mv2_d_3455_3065_s_4_2.jpg)